Inspirasi Neoklasik dan Gaya Federation dalam Desain Rumah Serba Putih
Dirancang oleh James Garvan Architecture, rumah serba putih ini menggabungkan elemen-elemen arsitektur neoklasik dan gaya Federation yang khas dari lingkungan sekitarnya. Namun, desain ini tidak hanya sekadar meniru, tetapi juga memberikan interpretasi kontemporer yang segar dan relevan dengan kebutuhan modern.

Interpretasi Kontemporer yang Segar dan Relevan
Rumah yang diberi nama Moon House terletak di kawasan Waverley, sebuah area yang kaya akan arsitektur tradisional. Tidak seperti banyak proyek lainnya yang mungkin hanya menyalin gaya lama, Moon House mencoba memadukan nilai-nilai estetika masa lalu dengan inovasi modern.

Tata Ruang Terbuka yang Menyenangkan
Moon House dimiliki oleh pasangan muda yang baru saja memiliki bayi. Mereka ingin hunian yang memiliki tata ruang terbuka, mampu mengakomodasi pertumbuhan keluarga, serta nyaman untuk menerima kunjungan dari teman dan kerabat. Selain itu, suasana interior yang terang, lapang, dan terasa organik menjadi prioritas utama bagi pemilik rumah.

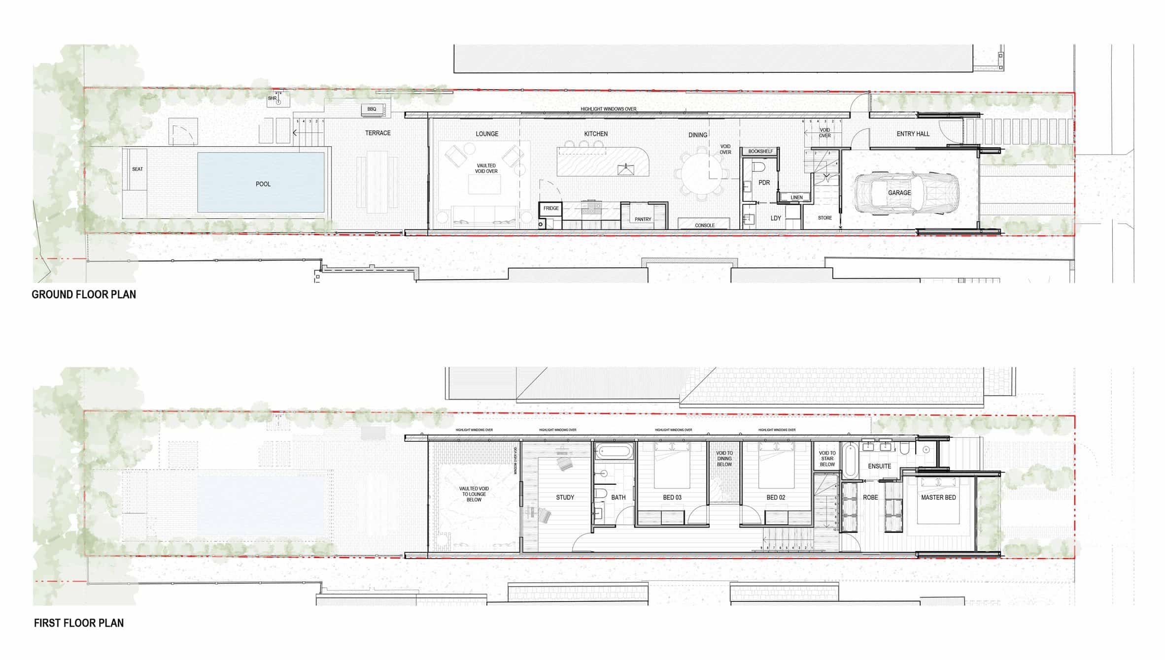
Denah Moon House yang Unik
Pada tahap awal proyek, ditemukan bahwa bangunan lama yang berasal dari awal abad ke-20 memiliki pondasi yang tidak layak secara struktural. Oleh karena itu, keputusan diambil untuk membangun ulang rumah dari nol. Meski demikian, James Garvan Architecture tetap menjadikan karakter arsitektur lingkungan sekitar sebagai dasar dalam perancangan.

Komposisi Arsitektur yang Sederhana dan Modern
Secara komposisi, Moon House terdiri dari volume bata berbentuk persegi panjang yang sederhana. Dari massa utama ini, muncul tiga lengkungan besar berlapis seng yang menjadi elemen paling menonjol. Bentuk geometris bangunan bata merujuk pada kesederhanaan rumah neoklasik di sekitarnya, sementara lengkungan-lengkungan tersebut merupakan tafsir modern dari atap pelana curam khas rumah Federation era lama.

Fasad Depan yang Minimalis dan Elegan
Seluruh fasad dibalut warna putih bersih, menciptakan kesan ringan dan timeless. Satu-satunya kontras datang dari tanaman hijau yang menjuntai dari planter di tengah lengkungan terbesar, menambahkan elemen alami sekaligus melembutkan ekspresi arsitektur.

Lengkungan yang Menghubungkan Visual Antara Lantai Dasar dan Atas
Memasuki rumah, penghuni melewati koridor ramping yang mengarah ke area dapur dan ruang makan luas dengan furnitur built-in berlapis veneer kayu oak. Ruang ini kemudian berlanjut ke ruang keluarga dua lantai yang menjadi jantung rumah. Di area ini, langit-langit berbentuk barrel vault mempertegas tema lengkungan yang telah diperkenalkan di fasad. Salah satu lengkungan bahkan memuat jendela yang menghubungkan visual antara lantai dasar dan lantai atas.

Koridor Ramping yang Menjadi Jalan Masuk
Ruang keluarga memiliki pintu kaca geser besar yang terbuka langsung ke taman belakang dan area kolam renang. Menariknya, material lantai batu kapur berwarna terang digunakan secara konsisten dari interior hingga eksterior, menciptakan transisi ruang yang halus dan menyatu.

Pintu Geser ke Taman Belakang
Pada fasad belakang, James Garvan Architecture menghadirkan lengkungan cekung yang dalam, seolah menjadi inversi dari ekspresi fasad depan. Pendekatan ini memperkaya pengalaman ruang sekaligus menjaga kesatuan bahasa desain.

Fasad Belakang yang Berbeda
Untuk mengurangi kesan massa bangunan, kamar tidur, kamar bayi, kamar mandi, dan ruang kerja ditempatkan setengah lantai lebih tinggi. Palet warna dan material yang tertahan tetap diterapkan, dengan dominasi putih dan furniture kayu oak, menjaga konsistensi visual sekaligus menciptakan suasana tenang.

Interpretasi Modern di Moon House
Moon House menawarkan inspirasi tentang bagaimana merespons konteks sejarah tanpa terjebak pada imitasi. Proyek ini menunjukkan bahwa menghormati lingkungan sekitar dapat dilakukan melalui interpretasi bentuk, proporsi, dan material, menghasilkan hunian yang modern, fungsional, dan berakar pada tempatnya.